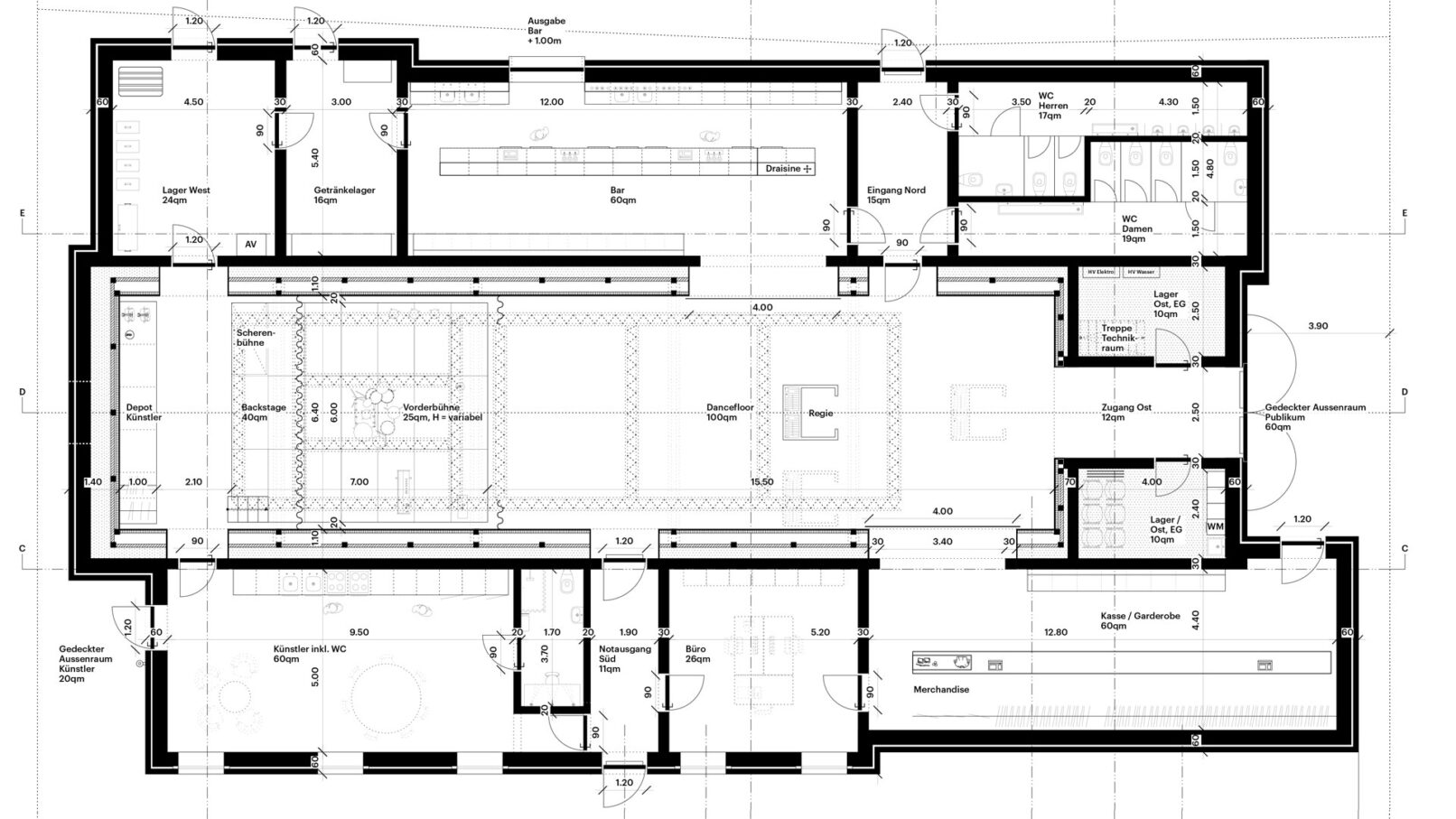
Projektbeschreibung:
Im Jahr 2019 erfolgte in einem Workshopverfahren die Planerwahl durch die Stadt Wil, vertreten durch das Departement Bau, Umwelt und Verkehr. Aus den vier teilnehmenden Architekturbüros ging das Atelier Barão-Hutter als Sieger hervor. Das Gebäude wird aktuell vom Verein Kulturzentrum Wil als Konzert- und Veranstaltungslokalität genutzt. Ziel der Planung war es, die Defizite im vorhandenen Raumprogramm (fehlende Büro- und Sitzungsräume, Backstagebereich für Künstler, Werkstatt, Stau- und Lagerraum) zu beseitigen. In diesem Zusammenhang sollte der Eingangsbereich mit der Situation Bar und Toiletten überarbeitet werden.
Standort:
9500 Wil, Silostrasse
Erbrachte Leistungen:
Kostencontrolling
Leistungserbringung:
Seit 2019
Baukosten BKP 1–9:
CHF 5‘000‘000.-
Bauherr:
Stadt Wil
Partner:
Atelier Barão-Hutter GmbH, 9000 St. Gallen (Architekt)
Borgogno Eggenberger + Partner AG, 9000 St. Gallen (Bauingenieur)
Zweifel AG, 9500 Wil (Elektro- und Gebäudeautomationsingenieur)
Richard Widmer, Messungen, Analysen, Haustechnikkonzepte GmbH, 9500 Wil (HLKS-Ingenieur)
Pirmin Jung Schweiz AG, 8500 Frauenfeld (Holzbauingenieur und Bauphysik)



